takeofficeなら掲載物件の仲介手数料は無料です

オカバ高崎ビル

住所 群馬県高崎市連雀町81
交通 JR湘南新宿ライン高崎」 徒歩9分
竣工 1973年 月 構造 RC
規模 地上6階 耐震基準 新耐震基準
床構造 - 空調設備 フロア別空調
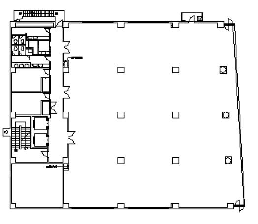
天井高 2490mm 基準階面積 175坪(578.51m2)
コンセント容量 - 施工会社

最新の募集状況や類似物件については、
こちらにお問い合わせください。

オカバ高崎ビル 外観

外観

  • NOW PRINTING

    エントランス

  • 基準階

    基準階

内見やお見積りなどの各種お問い合わせ

全物件
仲介手数料無料
仲介から
入居工事まで
ワンストップで対応
経験豊富なスタッフが
スピード感をもって
対応

周辺での似た条件の物件

非公開物件 多数あり!

お問い合わせフォーム