takeofficeなら掲載物件の仲介手数料は無料です

大樹生命大宮宮町ビル

住所 埼玉県さいたま市大宮区宮町2-96-1
交通 JR湘南新宿ライン大宮」 徒歩7分
竣工 1990年10月 構造 SRC
規模 地上8階, 地下1階 耐震基準 -
床構造 - 空調設備 個別空調
天井高 2600mm 基準階面積 121坪(400m2)
コンセント容量 - 施工会社

最新の募集状況や類似物件については、
こちらにお問い合わせください。

大樹生命大宮宮町ビル 外観

外観

  • NOW PRINTING

    エントランス

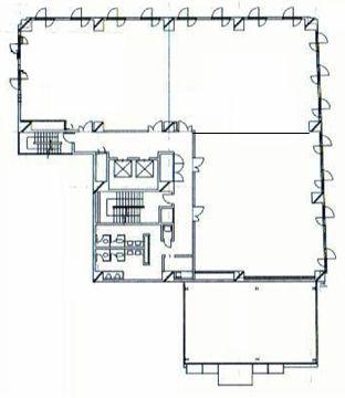
  • 基準階

    基準階

内見やお見積りなどの各種お問い合わせ

全物件
仲介手数料無料
仲介から
入居工事まで
ワンストップで対応
経験豊富なスタッフが
スピード感をもって
対応

周辺での似た条件の物件

非公開物件 多数あり!

お問い合わせフォーム