takeofficeなら掲載物件の仲介手数料は無料です

松亀センタービル2

住所 埼玉県さいたま市大宮区下町1-48
交通 JR湘南新宿ライン大宮」 徒歩5分
竣工 2002年07月 構造 -
規模 地上5階 耐震基準 新耐震基準
床構造 フリーアクセス 75mm 空調設備 個別空調
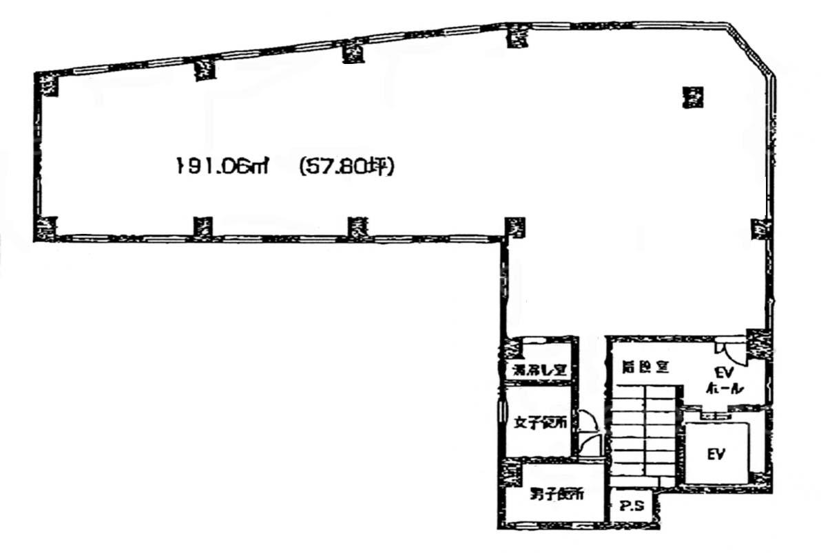
天井高 2700mm 基準階面積 57.8坪(191.07m2)
コンセント容量 - 施工会社

最新の募集状況や類似物件については、
こちらにお問い合わせください。

松亀センタービル2 外観

外観

  • 松亀センタービル2 エントランス写真

    エントランス

内見やお見積りなどの各種お問い合わせ

全物件
仲介手数料無料
仲介から
入居工事まで
ワンストップで対応
経験豊富なスタッフが
スピード感をもって
対応
非公開物件 多数あり!

お問い合わせフォーム