takeofficeなら掲載物件の仲介手数料は無料です

大樹生命千葉中央ビル

住所 千葉県千葉市中央区中央3-9-16
交通 京成千葉線千葉中央」 徒歩8分
JR総武本線千葉」 徒歩14分
竣工 1988年03月 構造 SRC
規模 地上8階, 地下1階 耐震基準 新耐震基準
床構造 フリーアクセス 空調設備 個別空調
天井高 2500mm 基準階面積 --
コンセント容量 - 施工会社

最新の募集状況や類似物件については、
こちらにお問い合わせください。

大樹生命千葉中央ビル 外観

外観

  • 大樹生命千葉中央ビル エントランス写真

    エントランス

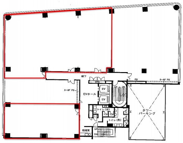
  • 6F

    6F

内見やお見積りなどの各種お問い合わせ

全物件
仲介手数料無料
仲介から
入居工事まで
ワンストップで対応
経験豊富なスタッフが
スピード感をもって
対応

周辺での似た条件の物件

非公開物件 多数あり!

お問い合わせフォーム