takeofficeなら掲載物件の仲介手数料は無料です

あいおいニッセイ同和損保船橋ビル

住所 千葉県船橋市本町3-32-25
交通 JR総武本線船橋」 徒歩10分
竣工 1974年02月 構造 SRC
規模 地上9階, 地下1階 耐震基準 新耐震基準
床構造 フリーアクセス 50mm 空調設備 個別空調
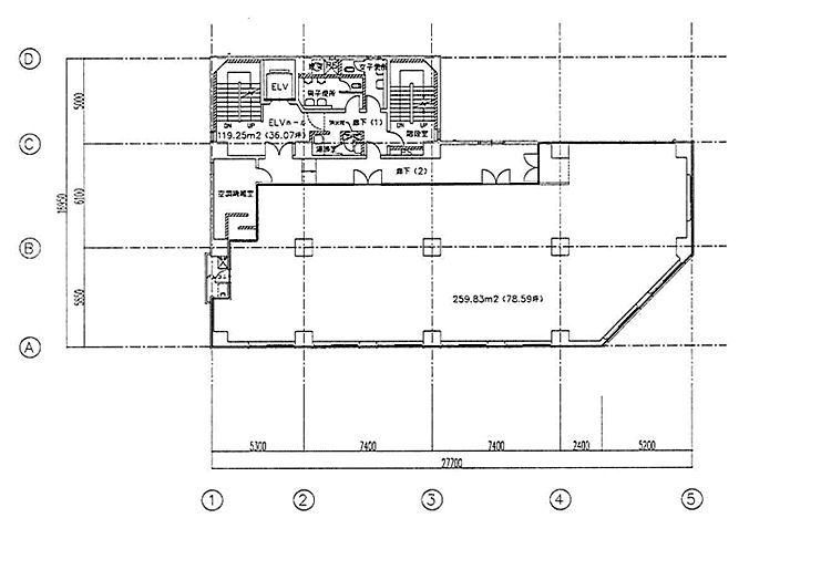
天井高 2450mm 基準階面積 115坪(380.17m2)
コンセント容量 - 施工会社

最新の募集状況や類似物件については、
こちらにお問い合わせください。

あいおいニッセイ同和損保船橋ビル 外観

外観

  • NOW PRINTING

    エントランス

  • 基準階

    基準階

内見やお見積りなどの各種お問い合わせ

全物件
仲介手数料無料
仲介から
入居工事まで
ワンストップで対応
経験豊富なスタッフが
スピード感をもって
対応

周辺での似た条件の物件

非公開物件 多数あり!

お問い合わせフォーム