takeofficeなら掲載物件の仲介手数料は無料です

TMMビル

住所 東京都千代田区岩本町1-10-5
交通 JR総武線(快速)馬喰町」 徒歩4分
東京メトロ日比谷線小伝馬町」 徒歩5分
都営新宿線岩本町」 徒歩5分
竣工 1973年09月 構造 SRC
規模 地上9階, 地下2階 耐震基準 旧耐震基準
床構造 フリーアクセス 空調設備 個別空調
天井高 2400mm 基準階面積 --
コンセント容量 - 施工会社

最新の募集状況や類似物件については、
こちらにお問い合わせください。

TMMビル 外観

外観

  • TMMビル エントランス写真

    エントランス

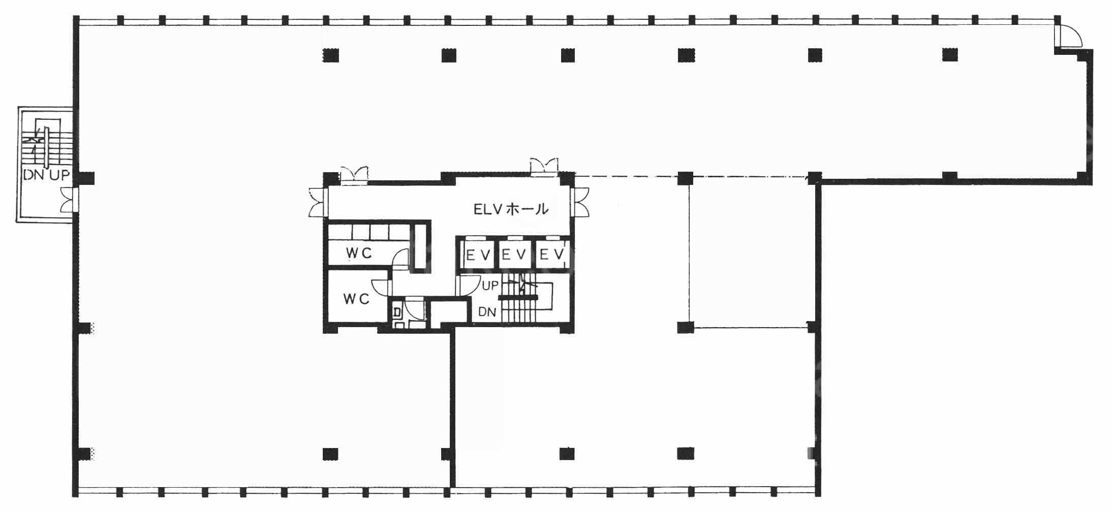
  • 基準階(5F)

    基準階(5F)

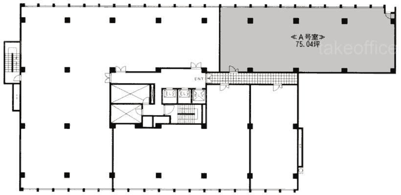
  • 4FA号室

    4FA号室

内見やお見積りなどの各種お問い合わせ

全物件
仲介手数料無料
仲介から
入居工事まで
ワンストップで対応
経験豊富なスタッフが
スピード感をもって
対応

周辺での似た条件の物件

非公開物件 多数あり!

お問い合わせフォーム