takeofficeなら掲載物件の仲介手数料は無料です

岩本町サニービル

住所 東京都千代田区岩本町2-15-19
交通 都営新宿線岩本町」 徒歩6分
JR総武線(快速)馬喰町」 徒歩6分
東京メトロ日比谷線小伝馬町」 徒歩6分
竣工 1984年03月 構造 RC
規模 地上5階, 地下1階 耐震基準 新耐震基準
床構造 フリーアクセス 空調設備 個別空調
天井高 - 基準階面積 --
コンセント容量 - 施工会社

最新の募集状況や類似物件については、
こちらにお問い合わせください。

岩本町サニービル 外観

外観

  • 岩本町サニービル エントランス写真

    エントランス

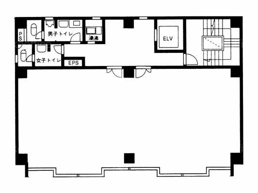
  • 基準階(2~4F)

    基準階(2~4F)

内見やお見積りなどの各種お問い合わせ

全物件
仲介手数料無料
仲介から
入居工事まで
ワンストップで対応
経験豊富なスタッフが
スピード感をもって
対応

周辺での似た条件の物件

非公開物件 多数あり!

お問い合わせフォーム