takeofficeなら掲載物件の仲介手数料は無料です

千代田NSOビル

住所 東京都千代田区岩本町3-8-15
交通 都営新宿線岩本町」 徒歩2分
JR山手線秋葉原」 徒歩5分
東京メトロ日比谷線秋葉原」 徒歩5分
竣工 1991年12月 構造 SRC
規模 地上10階 耐震基準 新耐震基準
床構造 フリーアクセス 空調設備 フロア別空調
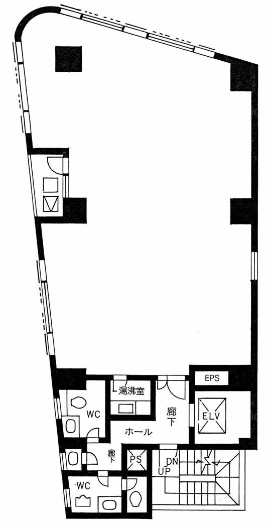
天井高 - 基準階面積 42.47坪(140.4m2)
コンセント容量 - 施工会社

最新の募集状況や類似物件については、
こちらにお問い合わせください。

千代田NSOビル 外観

外観

  • NOW PRINTING

    エントランス

  • 基準階(2~9F)

    基準階(2~9F)

内見やお見積りなどの各種お問い合わせ

全物件
仲介手数料無料
仲介から
入居工事まで
ワンストップで対応
経験豊富なスタッフが
スピード感をもって
対応

周辺での似た条件の物件

非公開物件 多数あり!

お問い合わせフォーム