takeofficeなら掲載物件の仲介手数料は無料です

K&SFIELD

住所 東京都千代田区東神田1-4
交通 JR総武線(快速)馬喰町」 徒歩3分
都営新宿線馬喰横山」 徒歩3分
都営新宿線岩本町」 徒歩5分
竣工 1989年11月 構造 RC
規模 地上6階, 地下1階 耐震基準 新耐震基準
床構造 - 空調設備 個別空調
天井高 2360mm 基準階面積 45坪(151m2)
コンセント容量 - 施工会社

最新の募集状況や類似物件については、
こちらにお問い合わせください。

K&SFIELD 外観

外観

  • K&SFIELD エントランス写真

    エントランス

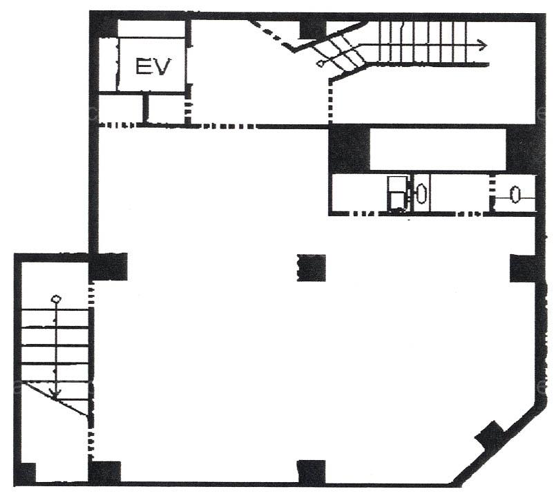
  • 基準階

    基準階

  • B1F

    B1F

内見やお見積りなどの各種お問い合わせ

全物件
仲介手数料無料
仲介から
入居工事まで
ワンストップで対応
経験豊富なスタッフが
スピード感をもって
対応

周辺での似た条件の物件

非公開物件 多数あり!

お問い合わせフォーム