takeofficeなら掲載物件の仲介手数料は無料です

東京西本ビルディング

住所 東京都千代田区外神田3-2-14
交通 東京メトロ銀座線末広町」 徒歩6分
JR山手線秋葉原」 徒歩7分
JR中央線御茶ノ水」 徒歩9分
竣工 1981年06月 構造 -
規模 地上5階, 地下0階 耐震基準 旧耐震基準
床構造 - 空調設備 -
天井高 - 基準階面積 --
コンセント容量 - 施工会社

最新の募集状況や類似物件については、
こちらにお問い合わせください。

東京西本ビルディング 外観

外観

  • NOW PRINTING

    エントランス

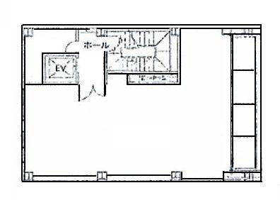
  • 2F

    2F

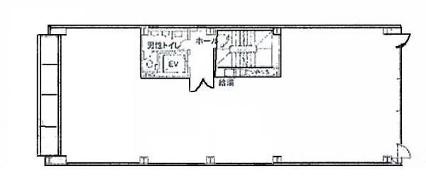
  • 1F

    1F

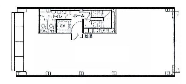
  • 3F

    3F

  • 4F

    4F

  • 5F

    5F

  • 6F

    6F

  • B1F

    B1F

内見やお見積りなどの各種お問い合わせ

全物件
仲介手数料無料
仲介から
入居工事まで
ワンストップで対応
経験豊富なスタッフが
スピード感をもって
対応

周辺での似た条件の物件

非公開物件 多数あり!

お問い合わせフォーム