takeofficeなら掲載物件の仲介手数料は無料です

真田ビル

住所 東京都千代田区外神田6-7-2
交通 東京メトロ千代田線湯島」 徒歩3分
東京メトロ銀座線末広町」 徒歩4分
東京メトロ銀座線上野広小路」 徒歩8分
竣工 1974年 月 構造 RC
規模 地上5階 耐震基準 旧耐震基準
床構造 フリーアクセス 空調設備 -
天井高 - 基準階面積 --
コンセント容量 - 施工会社

最新の募集状況や類似物件については、
こちらにお問い合わせください。

真田ビル 外観

外観

  • 真田ビル エントランス写真

    エントランス

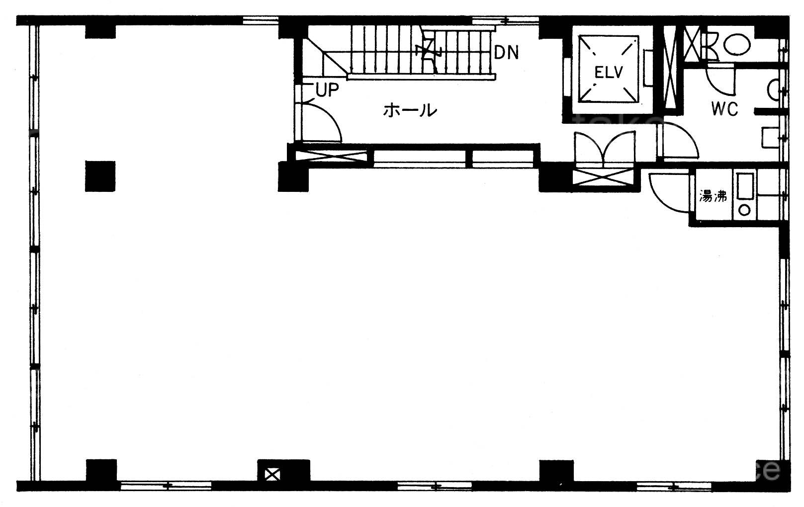
  • 基準階

    基準階

  • 1F

    1F

内見やお見積りなどの各種お問い合わせ

全物件
仲介手数料無料
仲介から
入居工事まで
ワンストップで対応
経験豊富なスタッフが
スピード感をもって
対応

周辺での似た条件の物件

非公開物件 多数あり!

お問い合わせフォーム