takeofficeなら掲載物件の仲介手数料は無料です

タイワビル

住所 東京都千代田区神田和泉町1-3-3
交通 JR山手線秋葉原」 徒歩4分
都営新宿線岩本町」 徒歩7分
東京メトロ日比谷線秋葉原」 徒歩4分
竣工 1985年03月 構造 SRC
規模 地上10階, 地下1階 耐震基準 新耐震基準
床構造 - 空調設備 個別空調
天井高 - 基準階面積 31坪(105m2)
コンセント容量 - 施工会社

最新の募集状況や類似物件については、
こちらにお問い合わせください。

タイワビル 外観

外観

  • タイワビル エントランス写真

    エントランス

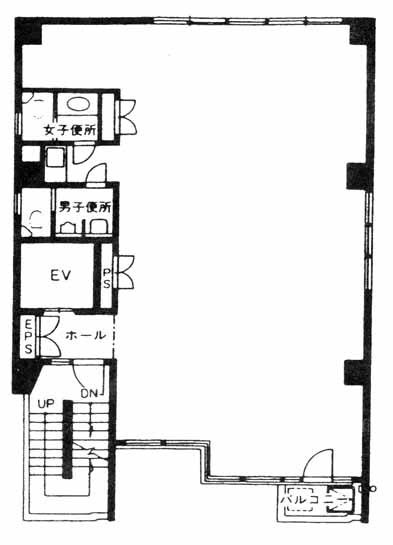
  • 基準階(5~10F)

    基準階(5~10F)

  • 2F

    2F

  • 9F

    9F

内見やお見積りなどの各種お問い合わせ

全物件
仲介手数料無料
仲介から
入居工事まで
ワンストップで対応
経験豊富なスタッフが
スピード感をもって
対応

周辺での似た条件の物件

非公開物件 多数あり!

お問い合わせフォーム