takeofficeなら掲載物件の仲介手数料は無料です

住友商事神田和泉町ビル

住所 東京都千代田区神田和泉町1-13-15
交通 JR山手線秋葉原」 徒歩5分
都営新宿線岩本町」 徒歩9分
東京メトロ日比谷線秋葉原」 徒歩5分
竣工 1985年04月 構造 鉄骨造+SRC
規模 地上14階, 地下1階 耐震基準 新耐震基準
床構造 フリーアクセス 70mm 空調設備 セントラル空調
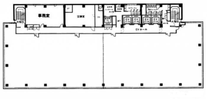
天井高 2530mm 基準階面積 324.02坪(1071.14m2)
コンセント容量 30VA/m2 施工会社 鹿島建設・大林組・竹中工務店

最新の募集状況や類似物件については、
こちらにお問い合わせください。

住友商事神田和泉町ビル 外観

外観

建物パンフレット

建物パンフレットは作成時点のものであり、また計画段階のものも含まれる為、実際とは異なる場合がございます。

内見やお見積りなどの各種お問い合わせ

全物件
仲介手数料無料
仲介から
入居工事まで
ワンストップで対応
経験豊富なスタッフが
スピード感をもって
対応

周辺での似た条件の物件

非公開物件 多数あり!

お問い合わせフォーム