takeofficeなら掲載物件の仲介手数料は無料です

秋葉原中央通りビル

住所 東京都千代田区外神田3-16-12
交通 東京メトロ銀座線末広町」 徒歩1分
JR山手線秋葉原」 徒歩6分
竣工 2000年 月 構造 SRC
規模 地上9階, 地下2階 耐震基準 新耐震基準
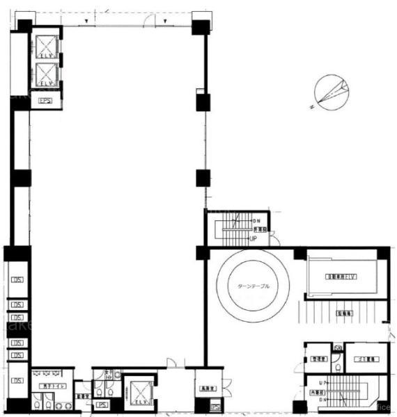
床構造 フリーアクセス 70mm 空調設備 個別空調
天井高 2600mm 基準階面積 --
コンセント容量 - 施工会社

最新の募集状況や類似物件については、
こちらにお問い合わせください。

秋葉原中央通りビル 外観

外観

  • NOW PRINTING

    エントランス

内見やお見積りなどの各種お問い合わせ

全物件
仲介手数料無料
仲介から
入居工事まで
ワンストップで対応
経験豊富なスタッフが
スピード感をもって
対応

周辺での似た条件の物件

非公開物件 多数あり!

お問い合わせフォーム