takeofficeなら掲載物件の仲介手数料は無料です

神田営和ビル

住所 東京都千代田区神田美倉町2
交通 JR山手線神田」 徒歩4分
東京メトロ半蔵門線三越前」 徒歩6分
東京メトロ銀座線神田」 徒歩4分
竣工 1973年03月 構造 SRC
規模 地上7階, 地下1階 耐震基準 旧耐震基準
床構造 - 空調設備 個別空調
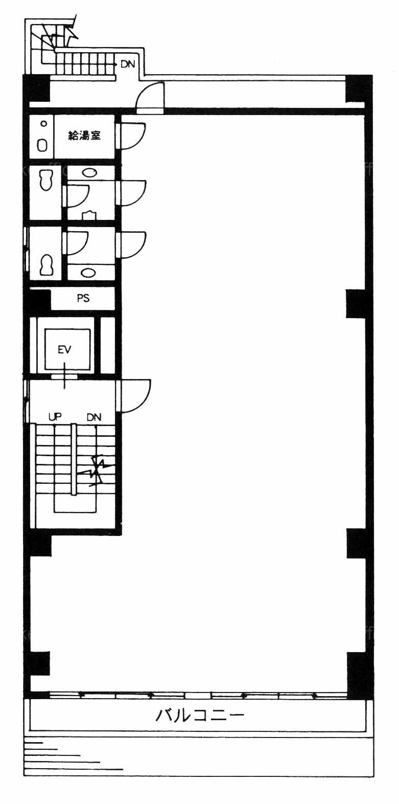
天井高 2500mm 基準階面積 46.78坪(154.64m2)
コンセント容量 - 施工会社

最新の募集状況や類似物件については、
こちらにお問い合わせください。

神田営和ビル 外観

外観

  • 神田営和ビル エントランス写真

    エントランス

  • 基準階

    基準階

  • 7F

    7F

内見やお見積りなどの各種お問い合わせ

全物件
仲介手数料無料
仲介から
入居工事まで
ワンストップで対応
経験豊富なスタッフが
スピード感をもって
対応

周辺での似た条件の物件

非公開物件 多数あり!

お問い合わせフォーム