takeofficeなら掲載物件の仲介手数料は無料です

みかもビル

住所 東京都千代田区鍛冶町2-10-9
交通 JR山手線神田」 徒歩3分
JR総武線(快速)新日本橋」 徒歩6分
都営新宿線岩本町」 徒歩6分
竣工 1970年 構造 RC
規模 地上6階, 地下0階 耐震基準 旧耐震基準
床構造 - 空調設備 個別空調
天井高 - 基準階面積 20坪(66m2)
コンセント容量 60VA/m2 施工会社

最新の募集状況や類似物件については、
こちらにお問い合わせください。

みかもビル 外観

外観

  • NOW PRINTING

    エントランス

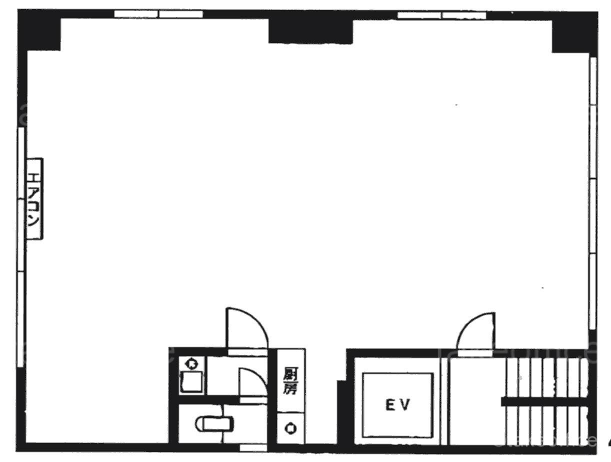
  • 基準階

    基準階

内見やお見積りなどの各種お問い合わせ

全物件
仲介手数料無料
仲介から
入居工事まで
ワンストップで対応
経験豊富なスタッフが
スピード感をもって
対応

周辺での似た条件の物件

非公開物件 多数あり!

お問い合わせフォーム