takeofficeなら掲載物件の仲介手数料は無料です

THE KAITEKIビル(旧:セントラル新大手町ビル)

住所 東京都千代田区内神田1-13-4
交通 東京メトロ丸ノ内線大手町」 徒歩5分
JR京浜東北線神田」 徒歩7分
竣工 2007年06月 構造 SRC
規模 地上9階, 地下1階 耐震基準 新耐震基準
床構造 フリーアクセス 100mm 空調設備 個別空調
天井高 2700mm 基準階面積 173.03坪(572m2)
コンセント容量 50VA/m2 施工会社

最新の募集状況や類似物件については、
こちらにお問い合わせください。

THE KAITEKIビル(旧:セントラル新大手町ビル) 外観

外観

  • THE KAITEKIビル(旧:セントラル新大手町ビル) エントランス写真

    エントランス

  • 基準階(2~9F)

    基準階(2~9F)

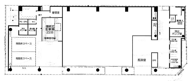
  • 1F

    1F

建物パンフレット

建物パンフレットは作成時点のものであり、また計画段階のものも含まれる為、実際とは異なる場合がございます。

内見やお見積りなどの各種お問い合わせ

全物件
仲介手数料無料
仲介から
入居工事まで
ワンストップで対応
経験豊富なスタッフが
スピード感をもって
対応

周辺での似た条件の物件

非公開物件 多数あり!

お問い合わせフォーム