takeofficeなら掲載物件の仲介手数料は無料です

オーク神田ビルディング

住所 東京都千代田区神田司町2-1-1
交通 東京メトロ丸ノ内線淡路町」 徒歩4分
JR山手線神田」 徒歩5分
都営新宿線小川町」 徒歩4分
竣工 2008年10月 構造 鉄骨造+SRC
規模 地上9階 耐震基準 新耐震基準
床構造 フリーアクセス 100mm 空調設備 ゾーン空調
天井高 2750mm 基準階面積 201.15坪(664.96m2)
コンセント容量 75VA/m2 施工会社 大林組

最新の募集状況や類似物件については、
こちらにお問い合わせください。

オーク神田ビルディング 外観

外観

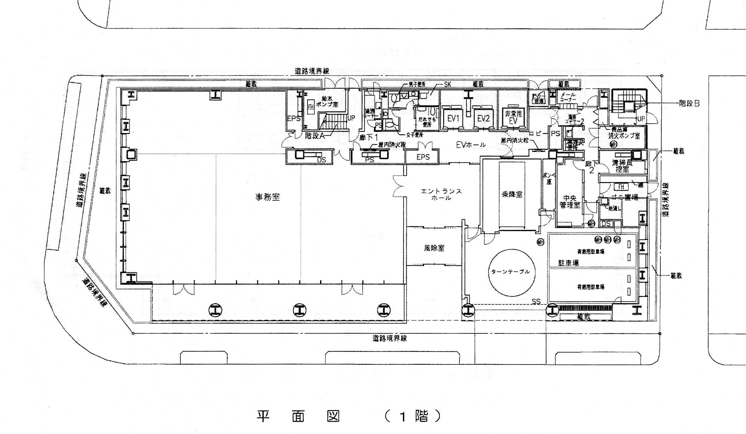
建物パンフレット

建物パンフレットは作成時点のものであり、また計画段階のものも含まれる為、実際とは異なる場合がございます。

内見やお見積りなどの各種お問い合わせ

全物件
仲介手数料無料
仲介から
入居工事まで
ワンストップで対応
経験豊富なスタッフが
スピード感をもって
対応

周辺での似た条件の物件

非公開物件 多数あり!

お問い合わせフォーム