takeofficeなら掲載物件の仲介手数料は無料です

住友不動産神田ビル2号館

住所 東京都千代田区神田須田町1-23-1
交通 都営新宿線小川町」 徒歩3分
東京メトロ丸ノ内線淡路町」 徒歩3分
東京メトロ銀座線神田」 徒歩4分
竣工 2009年06月 構造 鉄骨造+SRC
規模 地上19階, 地下2階 耐震基準 新耐震基準
床構造 フリーアクセス 100mm 空調設備 個別空調
天井高 2800mm 基準階面積 244.81坪(809.29m2)
コンセント容量 90VA/m2 施工会社

最新の募集状況や類似物件については、
こちらにお問い合わせください。

住友不動産神田ビル2号館 外観

外観

  • 住友不動産神田ビル2号館 エントランス写真

    エントランス

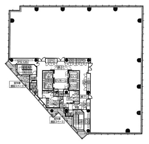
  • 基準階(7~19F)

    基準階(7~19F)

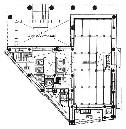
  • 1F

    1F

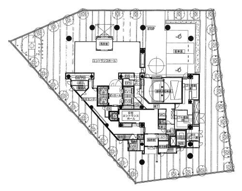
  • 2F

    2F

建物パンフレット

建物パンフレットは作成時点のものであり、また計画段階のものも含まれる為、実際とは異なる場合がございます。

内見やお見積りなどの各種お問い合わせ

全物件
仲介手数料無料
仲介から
入居工事まで
ワンストップで対応
経験豊富なスタッフが
スピード感をもって
対応

周辺での似た条件の物件

非公開物件 多数あり!

お問い合わせフォーム