takeofficeなら掲載物件の仲介手数料は無料です

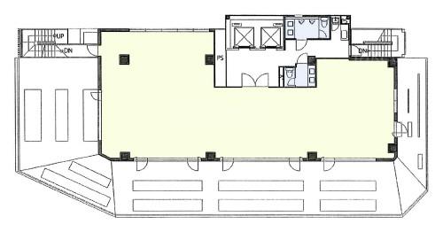
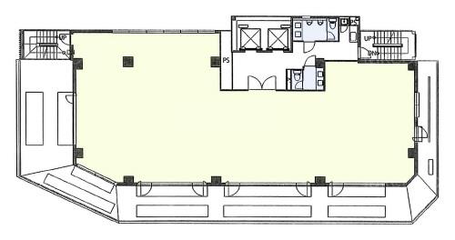
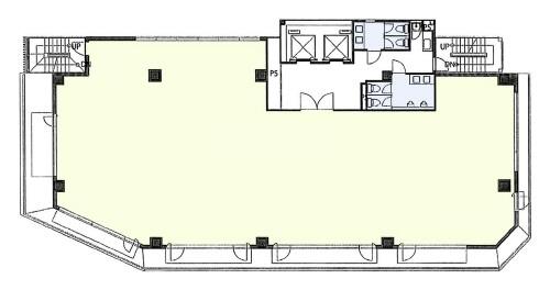
内神田すいすいビル

住所 東京都千代田区内神田2-10-1
交通 JR山手線神田」 徒歩4分
東京メトロ銀座線神田」 徒歩4分
東京メトロ丸ノ内線大手町」 徒歩6分
竣工 2009年11月 構造 -
規模 地上9階 耐震基準 新耐震基準
床構造 フリーアクセス 空調設備 個別空調
天井高 2600mm 基準階面積 113.29坪(374.51m2)
コンセント容量 60VA/m2 施工会社

最新の募集状況や類似物件については、
こちらにお問い合わせください。

内神田すいすいビル 外観

外観

内見やお見積りなどの各種お問い合わせ

全物件
仲介手数料無料
仲介から
入居工事まで
ワンストップで対応
経験豊富なスタッフが
スピード感をもって
対応

周辺での似た条件の物件

非公開物件 多数あり!

お問い合わせフォーム