takeofficeなら掲載物件の仲介手数料は無料です

(仮称)内神田3丁目一棟貸

住所 東京都千代田区内神田3-10-8
交通 JR山手線神田」 徒歩2分
東京メトロ丸ノ内線淡路町」 徒歩7分
竣工 1973年03月 構造 RC
規模 地上5階, 地下1階 耐震基準 -
床構造 - 空調設備 個別空調
天井高 - 基準階面積 --
コンセント容量 - 施工会社

最新の募集状況や類似物件については、
こちらにお問い合わせください。

(仮称)内神田3丁目一棟貸 外観

外観

  • (仮称)内神田3丁目一棟貸 エントランス写真

    エントランス

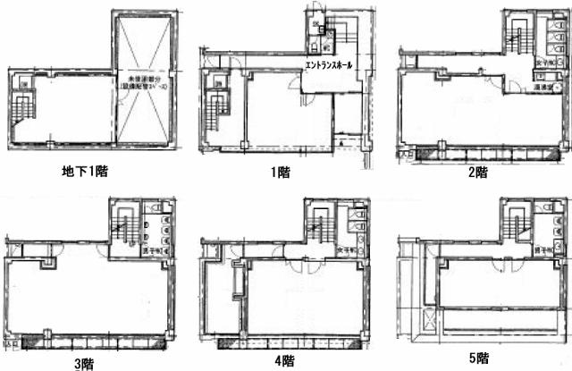
  • B1~5F

    B1~5F

内見やお見積りなどの各種お問い合わせ

全物件
仲介手数料無料
仲介から
入居工事まで
ワンストップで対応
経験豊富なスタッフが
スピード感をもって
対応

周辺での似た条件の物件

非公開物件 多数あり!

お問い合わせフォーム