takeofficeなら掲載物件の仲介手数料は無料です

神田東松下町飯田鋲螺ビル

住所 東京都千代田区神田東松下町28-4
交通 都営新宿線岩本町」 徒歩2分
JR山手線神田」 徒歩5分
竣工 2020年03月 構造 RC
規模 地上5階 耐震基準 新耐震基準
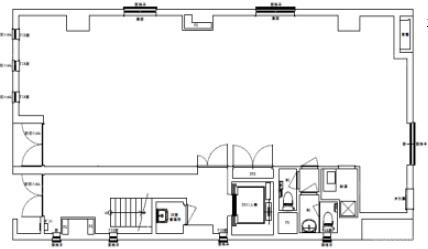
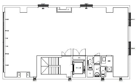
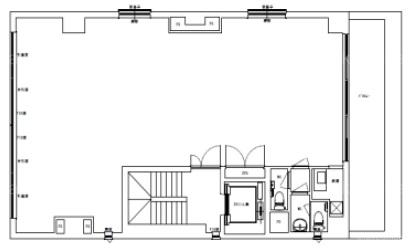
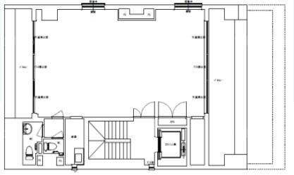
床構造 フリーアクセス 100mm 空調設備 個別空調
天井高 2650mm 基準階面積 39.39坪(130.21m2)
コンセント容量 - 施工会社 植木組

最新の募集状況や類似物件については、
こちらにお問い合わせください。

神田東松下町飯田鋲螺ビル 外観

外観

内見やお見積りなどの各種お問い合わせ

全物件
仲介手数料無料
仲介から
入居工事まで
ワンストップで対応
経験豊富なスタッフが
スピード感をもって
対応

周辺での似た条件の物件

非公開物件 多数あり!

お問い合わせフォーム