takeofficeなら掲載物件の仲介手数料は無料です

下平ビル

住所 東京都千代田区神田猿楽町2-1-16
交通 東京メトロ半蔵門線神保町」 徒歩6分
JR中央線御茶ノ水」 徒歩7分
JR総武本線水道橋」 徒歩8分
竣工 1985年04月 構造 RC
規模 地上7階 耐震基準 新耐震基準
床構造 - 空調設備 個別空調
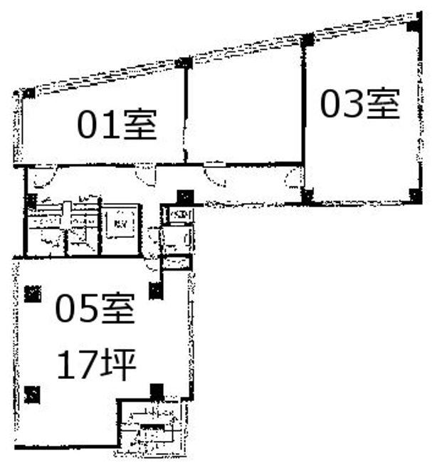
天井高 2350mm 基準階面積 17坪(56m2)
コンセント容量 - 施工会社

最新の募集状況や類似物件については、
こちらにお問い合わせください。

下平ビル 外観

外観

  • 下平ビル エントランス写真

    エントランス

内見やお見積りなどの各種お問い合わせ

全物件
仲介手数料無料
仲介から
入居工事まで
ワンストップで対応
経験豊富なスタッフが
スピード感をもって
対応

周辺での似た条件の物件

非公開物件 多数あり!

お問い合わせフォーム