takeofficeなら掲載物件の仲介手数料は無料です

ヘンミ第1ビル

住所 東京都千代田区神田駿河台4-4
交通 東京メトロ千代田線新御茶ノ水」 徒歩3分
都営新宿線小川町」 徒歩5分
竣工 1969年 構造 RC
規模 地上6階, 地下1階 耐震基準 旧耐震基準
床構造 フリーアクセス 空調設備 個別空調
天井高 - 基準階面積 --
コンセント容量 - 施工会社

最新の募集状況や類似物件については、
こちらにお問い合わせください。

NOW PRINTING

外観

  • NOW PRINTING

    エントランス

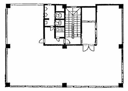
  • 基準階

    基準階

  • 1F

    1F

  • 5F

    5F

内見やお見積りなどの各種お問い合わせ

全物件
仲介手数料無料
仲介から
入居工事まで
ワンストップで対応
経験豊富なスタッフが
スピード感をもって
対応

周辺での似た条件の物件

非公開物件 多数あり!

お問い合わせフォーム