takeofficeなら掲載物件の仲介手数料は無料です

神田クレストビル

住所 東京都千代田区神田淡路町1-1
交通 東京メトロ丸ノ内線淡路町」 徒歩1分
都営新宿線小川町」 徒歩1分
JR総武本線御茶ノ水」 徒歩7分
竣工 1979年07月 構造 RC
規模 地上6階, 地下1階 耐震基準 新耐震基準
床構造 フリーアクセス 空調設備 個別空調
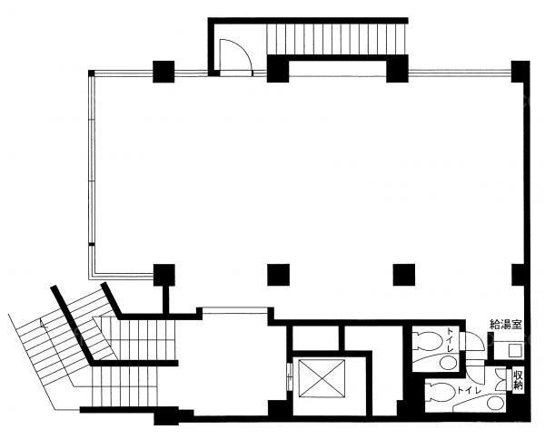
天井高 - 基準階面積 30.92坪(102.21m2)
コンセント容量 - 施工会社

最新の募集状況や類似物件については、
こちらにお問い合わせください。

神田クレストビル 外観

外観

内見やお見積りなどの各種お問い合わせ

全物件
仲介手数料無料
仲介から
入居工事まで
ワンストップで対応
経験豊富なスタッフが
スピード感をもって
対応

周辺での似た条件の物件

非公開物件 多数あり!

お問い合わせフォーム