takeofficeなら掲載物件の仲介手数料は無料です

光文恒産ビル

住所 東京都千代田区一ツ橋2-4-3
交通 東京メトロ半蔵門線神保町」 徒歩1分
竣工 1987年10月 構造 SRC
規模 地上10階, 地下2階 耐震基準 新耐震基準
床構造 フリーアクセス 50mm 空調設備 個別空調
天井高 2500mm 基準階面積 134.44坪(444.43m2)
コンセント容量 - 施工会社 鹿島建設

最新の募集状況や類似物件については、
こちらにお問い合わせください。

光文恒産ビル 外観

外観

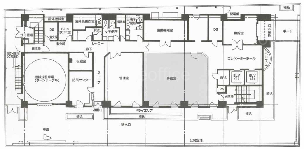
建物パンフレット

建物パンフレットは作成時点のものであり、また計画段階のものも含まれる為、実際とは異なる場合がございます。

内見やお見積りなどの各種お問い合わせ

全物件
仲介手数料無料
仲介から
入居工事まで
ワンストップで対応
経験豊富なスタッフが
スピード感をもって
対応

周辺での似た条件の物件

非公開物件 多数あり!

お問い合わせフォーム