takeofficeなら掲載物件の仲介手数料は無料です

斉藤ビル

住所 東京都千代田区神田錦町2-9-1
交通 東京メトロ東西線竹橋」 徒歩4分
東京メトロ東西線大手町」 徒歩6分
竣工 1965年09月 構造 RC
規模 地上7階 耐震基準 -
床構造 - 空調設備 個別空調
天井高 - 基準階面積 --
コンセント容量 - 施工会社

最新の募集状況や類似物件については、
こちらにお問い合わせください。

斉藤ビル 外観

外観

  • 斉藤ビル エントランス写真

    エントランス

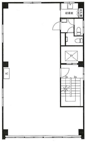
  • 基準階

    基準階

内見やお見積りなどの各種お問い合わせ

全物件
仲介手数料無料
仲介から
入居工事まで
ワンストップで対応
経験豊富なスタッフが
スピード感をもって
対応

周辺での似た条件の物件

非公開物件 多数あり!

お問い合わせフォーム