takeofficeなら掲載物件の仲介手数料は無料です

NSビル

住所 東京都千代田区神田錦町3-14
交通 東京メトロ半蔵門線神保町」 徒歩6分
東京メトロ千代田線新御茶ノ水」 徒歩6分
都営新宿線小川町」 徒歩7分
竣工 1968年12月 構造 RC
規模 地上4階 耐震基準 -
床構造 - 空調設備 -
天井高 - 基準階面積 --
コンセント容量 - 施工会社

最新の募集状況や類似物件については、
こちらにお問い合わせください。

NSビル 外観

外観

  • NSビル エントランス写真

    エントランス

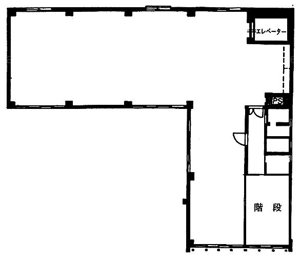
  • 基準階(3~4F)

    基準階(3~4F)

内見やお見積りなどの各種お問い合わせ

全物件
仲介手数料無料
仲介から
入居工事まで
ワンストップで対応
経験豊富なスタッフが
スピード感をもって
対応

周辺での似た条件の物件

非公開物件 多数あり!

お問い合わせフォーム