takeofficeなら掲載物件の仲介手数料は無料です

東京天理ビル

住所 東京都千代田区神田錦町1-9
交通 東京メトロ千代田線新御茶ノ水」 徒歩4分
都営新宿線小川町」 徒歩6分
東京メトロ東西線大手町」 徒歩6分
竣工 1962年04月 構造 SRC+RC
規模 地上9階, 地下3階 耐震基準 新耐震基準
床構造 フリーアクセス 70mm 空調設備 個別空調
天井高 2580mm 基準階面積 330.49坪(1092.53m2)
コンセント容量 35VA/m2 施工会社

最新の募集状況や類似物件については、
こちらにお問い合わせください。

東京天理ビル 外観

外観

  • 東京天理ビル エントランス写真

    エントランス

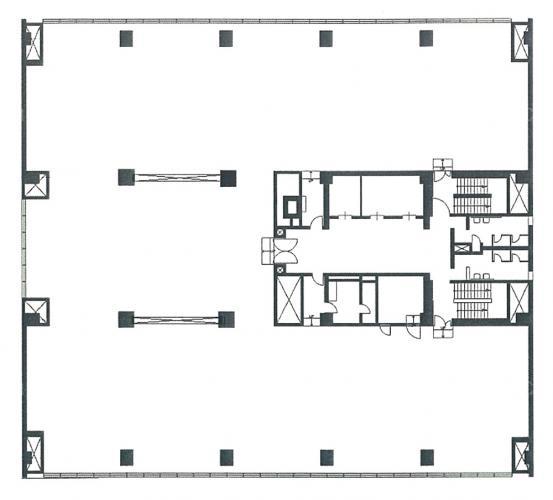
  • 基準階(3~6F)

    基準階(3~6F)

  • 1F

    1F

  • 2F

    2F

内見やお見積りなどの各種お問い合わせ

全物件
仲介手数料無料
仲介から
入居工事まで
ワンストップで対応
経験豊富なスタッフが
スピード感をもって
対応

周辺での似た条件の物件

非公開物件 多数あり!

お問い合わせフォーム