takeofficeなら掲載物件の仲介手数料は無料です

MMビル

住所 東京都千代田区神田三崎町2-19-9
交通 JR総武本線水道橋」 徒歩2分
JR総武本線飯田橋」 徒歩10分
都営三田線水道橋」 徒歩2分
竣工 1986年01月 構造 RC
規模 地上6階, 地下0階 耐震基準 新耐震基準
床構造 - 空調設備 個別空調
天井高 - 基準階面積 20.7坪(68.43m2)
コンセント容量 - 施工会社

最新の募集状況や類似物件については、
こちらにお問い合わせください。

MMビル 外観

外観

  • MMビル エントランス写真

    エントランス

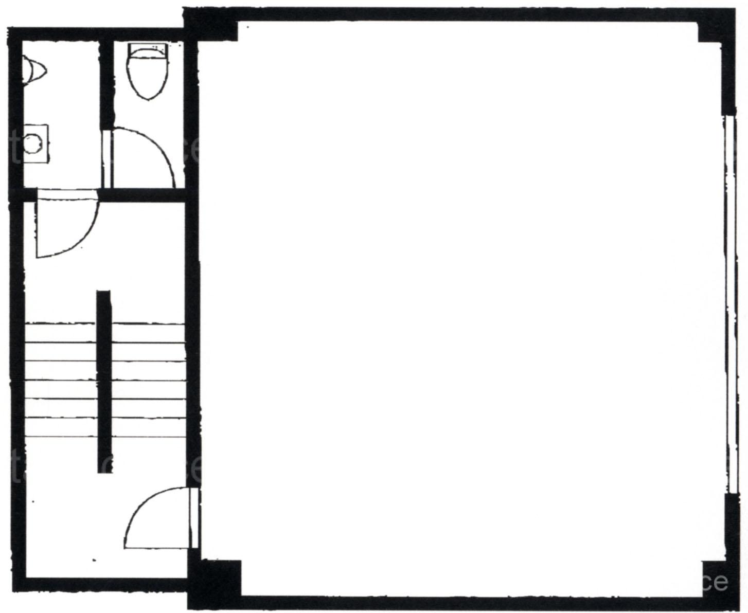
  • 基準階 (3~5F)

    基準階 (3~5F)

内見やお見積りなどの各種お問い合わせ

全物件
仲介手数料無料
仲介から
入居工事まで
ワンストップで対応
経験豊富なスタッフが
スピード感をもって
対応

周辺での似た条件の物件

非公開物件 多数あり!

お問い合わせフォーム