takeofficeなら掲載物件の仲介手数料は無料です

MMビルⅢ(旧:協栄ビル)

住所 東京都千代田区神田三崎町3-10-17
交通 JR総武本線水道橋」 徒歩5分
都営三田線水道橋」 徒歩5分
東京メトロ半蔵門線九段下」 徒歩6分
竣工 1984年03月 構造 SRC
規模 地上8階, 地下0階 耐震基準 新耐震基準
床構造 - 空調設備 個別空調
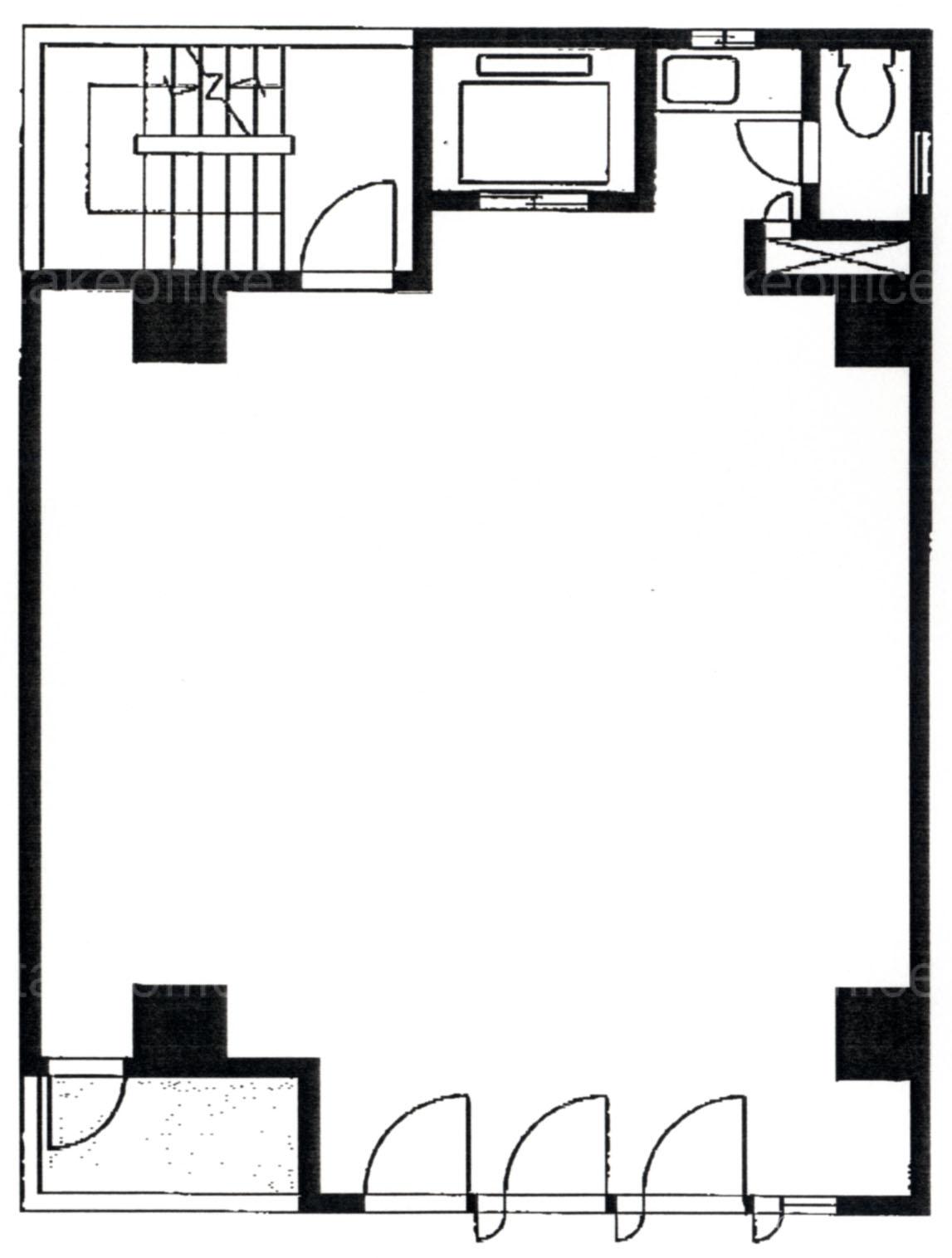
天井高 - 基準階面積 21.1坪(69.75m2)
コンセント容量 - 施工会社

最新の募集状況や類似物件については、
こちらにお問い合わせください。

MMビルⅢ(旧:協栄ビル) 外観

外観

  • MMビルⅢ(旧:協栄ビル) エントランス写真

    エントランス

  • 基準階

    基準階

内見やお見積りなどの各種お問い合わせ

全物件
仲介手数料無料
仲介から
入居工事まで
ワンストップで対応
経験豊富なスタッフが
スピード感をもって
対応

周辺での似た条件の物件

非公開物件 多数あり!

お問い合わせフォーム