takeofficeなら掲載物件の仲介手数料は無料です

カメラ太陽堂ビル

住所 東京都千代田区神田神保町1-10
交通 東京メトロ半蔵門線神保町」 徒歩1分
JR中央線御茶ノ水」 徒歩10分
東京メトロ東西線竹橋」 徒歩11分
竣工 1975年03月 構造 RC
規模 地上6階, 地下0階 耐震基準 旧耐震基準
床構造 - 空調設備 -
天井高 - 基準階面積 10坪(33m2)
コンセント容量 - 施工会社

最新の募集状況や類似物件については、
こちらにお問い合わせください。

カメラ太陽堂ビル 外観

外観

  • カメラ太陽堂ビル エントランス写真

    エントランス

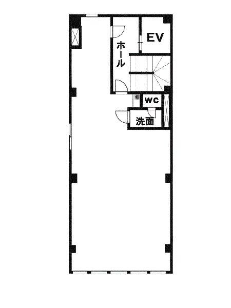
  • 基準階

    基準階

内見やお見積りなどの各種お問い合わせ

全物件
仲介手数料無料
仲介から
入居工事まで
ワンストップで対応
経験豊富なスタッフが
スピード感をもって
対応

周辺での似た条件の物件

非公開物件 多数あり!

お問い合わせフォーム