takeofficeなら掲載物件の仲介手数料は無料です

開拓社ビル

住所 東京都千代田区神田神保町2-5
交通 都営新宿線神保町」 徒歩1分
東京メトロ半蔵門線九段下」 徒歩6分
東京メトロ東西線竹橋」 徒歩8分
竣工 1989年10月 構造 鉄骨造
規模 地上9階, 地下1階 耐震基準 新耐震基準
床構造 フリーアクセス 50mm 空調設備 個別空調
天井高 2350mm 基準階面積 37.91坪(125.32m2)
コンセント容量 - 施工会社

最新の募集状況や類似物件については、
こちらにお問い合わせください。

開拓社ビル 外観

外観

  • NOW PRINTING

    エントランス

  • 基準階(3~8F)

    基準階(3~8F)

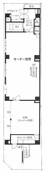
  • 1F

    1F

内見やお見積りなどの各種お問い合わせ

全物件
仲介手数料無料
仲介から
入居工事まで
ワンストップで対応
経験豊富なスタッフが
スピード感をもって
対応

周辺での似た条件の物件

非公開物件 多数あり!

お問い合わせフォーム