takeofficeなら掲載物件の仲介手数料は無料です

VORT神保町3

住所 東京都千代田区西神田2-1-8
交通 東京メトロ半蔵門線神保町」 徒歩5分
JR総武本線水道橋」 徒歩6分
竣工 2019年03月 構造 鉄骨造
規模 地上12階 耐震基準 新耐震基準
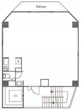
床構造 フリーアクセス 空調設備 個別空調
天井高 3000mm 基準階面積 16.67坪(55.11m2)
コンセント容量 - 施工会社

最新の募集状況や類似物件については、
こちらにお問い合わせください。

VORT神保町3 外観

外観

  • NOW PRINTING

    エントランス

  • 基準階

    基準階

  • 1F

    1F

  • 11F

    11F

  • 12F

    12F

内見やお見積りなどの各種お問い合わせ

全物件
仲介手数料無料
仲介から
入居工事まで
ワンストップで対応
経験豊富なスタッフが
スピード感をもって
対応

※「ご相談」と記載されている項目について
賃貸人が募集賃料条件を守秘義務の関係から明示していない場合に、【ご相談】と記載しております。
フリーレント(賃料免除)期間、使用面積、入居時期、テナント様の与信などによりご提示できる条件が若干変化いたします。
お手数ですが、詳細につきましては、上記よりお問い合わせください。

周辺での似た条件の物件

非公開物件 多数あり!

お問い合わせフォーム