takeofficeなら掲載物件の仲介手数料は無料です

ウメビル

住所 東京都千代田区飯田橋3-11-19
交通 東京メトロ南北線飯田橋」 徒歩3分
JR総武本線飯田橋」 徒歩3分
JR総武本線水道橋」 徒歩5分
竣工 1984年 月 構造 RC
規模 地上5階 耐震基準 新耐震基準
床構造 - 空調設備 個別空調
天井高 - 基準階面積 --
コンセント容量 - 施工会社

最新の募集状況や類似物件については、
こちらにお問い合わせください。

ウメビル 外観

外観

  • ウメビル エントランス写真

    エントランス

  • 2F

    2F

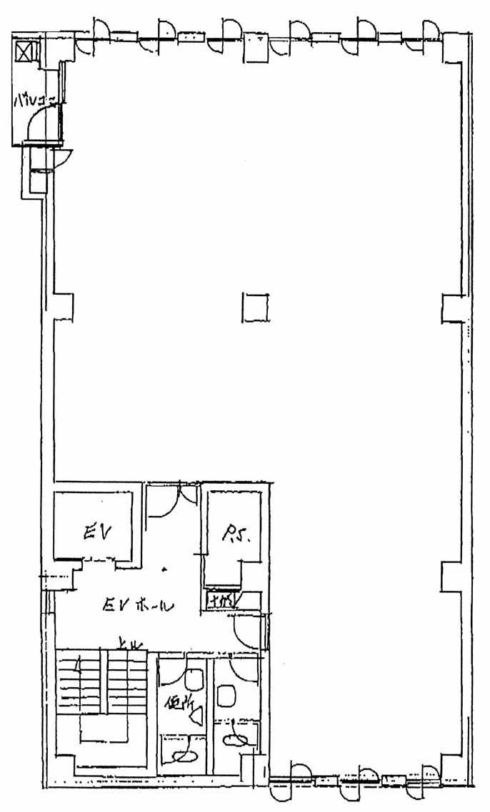
  • 3F

    3F

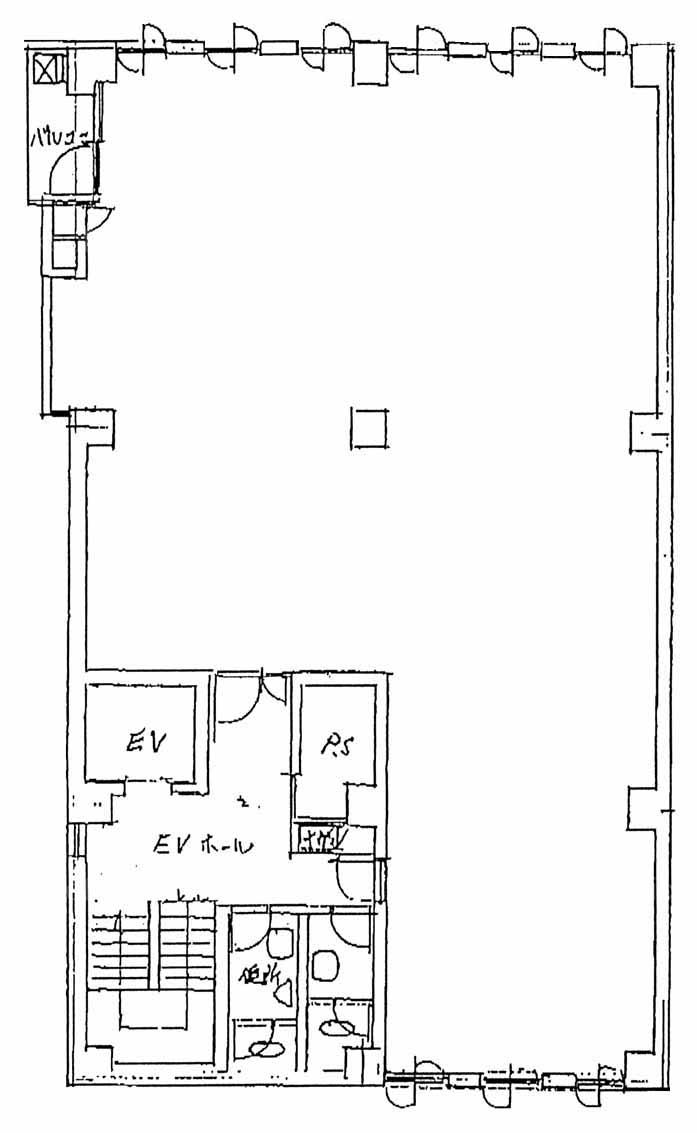
  • 5F

    5F

内見やお見積りなどの各種お問い合わせ

全物件
仲介手数料無料
仲介から
入居工事まで
ワンストップで対応
経験豊富なスタッフが
スピード感をもって
対応

周辺での似た条件の物件

非公開物件 多数あり!

お問い合わせフォーム