takeofficeなら掲載物件の仲介手数料は無料です

富士見イースト

住所 東京都千代田区富士見2-14-37
交通 JR総武本線飯田橋」 徒歩5分
東京メトロ半蔵門線九段下」 徒歩7分
東京メトロ有楽町線飯田橋」 徒歩6分
竣工 2006年09月 構造 RC
規模 地上5階, 地下1階 耐震基準 新耐震基準
床構造 フリーアクセス 100mm 空調設備 個別空調
天井高 2700mm 基準階面積 --
コンセント容量 50VA/m2 施工会社

最新の募集状況や類似物件については、
こちらにお問い合わせください。

富士見イースト 外観

外観

  • NOW PRINTING

    エントランス

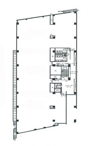
  • 基準階

    基準階

  • 1F

    1F

  • B1F

    B1F

建物パンフレット

建物パンフレットは作成時点のものであり、また計画段階のものも含まれる為、実際とは異なる場合がございます。

内見やお見積りなどの各種お問い合わせ

全物件
仲介手数料無料
仲介から
入居工事まで
ワンストップで対応
経験豊富なスタッフが
スピード感をもって
対応

周辺での似た条件の物件

非公開物件 多数あり!

お問い合わせフォーム