takeofficeなら掲載物件の仲介手数料は無料です

富士見ウェスト

住所 東京都千代田区富士見2-14-37
交通 JR総武本線飯田橋」 徒歩5分
東京メトロ半蔵門線九段下」 徒歩7分
東京メトロ有楽町線飯田橋」 徒歩6分
竣工 2006年09月 構造 RC
規模 地上4階 耐震基準 新耐震基準
床構造 フリーアクセス 空調設備 個別空調
天井高 2700mm 基準階面積 192.48坪(636.3m2)
コンセント容量 - 施工会社

最新の募集状況や類似物件については、
こちらにお問い合わせください。

富士見ウェスト 外観

外観

  • 富士見ウェスト エントランス写真

    エントランス

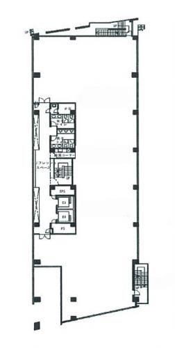
  • 基準階(3~4F)

    基準階(3~4F)

  • 1F

    1F

  • 2F

    2F

内見やお見積りなどの各種お問い合わせ

全物件
仲介手数料無料
仲介から
入居工事まで
ワンストップで対応
経験豊富なスタッフが
スピード感をもって
対応

周辺での似た条件の物件

非公開物件 多数あり!

お問い合わせフォーム