takeofficeなら掲載物件の仲介手数料は無料です

九段中島ビル

住所 東京都千代田区九段南2-3-22
交通 東京メトロ半蔵門線九段下」 徒歩6分
JR総武本線市ヶ谷」 徒歩10分
東京メトロ南北線市ヶ谷」 徒歩10分
竣工 1992年08月 構造 鉄骨造
規模 地上10階 耐震基準 新耐震基準
床構造 - 空調設備 個別空調
天井高 - 基準階面積 15坪(50m2)
コンセント容量 - 施工会社

最新の募集状況や類似物件については、
こちらにお問い合わせください。

九段中島ビル 外観

外観

  • 九段中島ビル エントランス写真

    エントランス

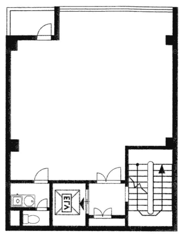
  • 2-3F

    2-3F

内見やお見積りなどの各種お問い合わせ

全物件
仲介手数料無料
仲介から
入居工事まで
ワンストップで対応
経験豊富なスタッフが
スピード感をもって
対応

周辺での似た条件の物件

非公開物件 多数あり!

お問い合わせフォーム