takeofficeなら掲載物件の仲介手数料は無料です

九段今宮ビル

住所 東京都千代田区九段南2-5-10
交通 東京メトロ東西線九段下」 徒歩8分
東京メトロ半蔵門線半蔵門」 徒歩10分
JR総武本線市ヶ谷」 徒歩10分
竣工 1984年02月 構造 鉄骨造
規模 地上4階, 地下0階 耐震基準 新耐震基準
床構造 - 空調設備 個別空調
天井高 - 基準階面積 --
コンセント容量 - 施工会社

最新の募集状況や類似物件については、
こちらにお問い合わせください。

九段今宮ビル 外観

外観

  • 九段今宮ビル エントランス写真

    エントランス

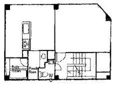
  • 3F

    3F

  • 4F

    4F

内見やお見積りなどの各種お問い合わせ

全物件
仲介手数料無料
仲介から
入居工事まで
ワンストップで対応
経験豊富なスタッフが
スピード感をもって
対応

周辺での似た条件の物件

非公開物件 多数あり!

お問い合わせフォーム