| 住所 | 東京都千代田区九段北4-1-28 | ||
|---|---|---|---|
| 交通 |
JR総武本線 「市ヶ谷」 徒歩5分 東京メトロ半蔵門線 「半蔵門」 徒歩12分 都営大江戸線 「牛込神楽坂」 徒歩14分 |
||
| 竣工 | 2004年04月 | 構造 | 鉄骨造+SRC |
|---|---|---|---|
| 規模 | 地上8階, 地下1階 | 耐震基準 | 新耐震基準 |
| 床構造 | フリーアクセス 100mm | 空調設備 | 個別空調 |
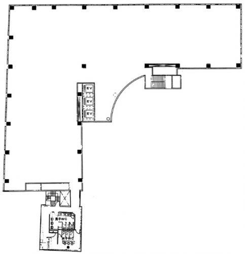
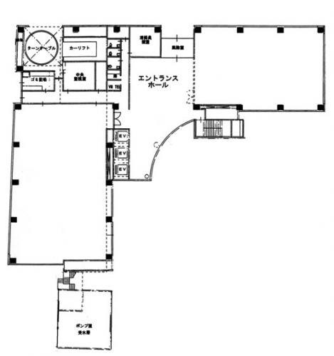
| 天井高 | 2700mm | 基準階面積 | 324.48坪(1072.66m2) |
| コンセント容量 | - | 施工会社 |
| 階 | 坪面積 | 用途 | 賃料 | 坪単価 | 共益費 | 入居可能日 |
|---|---|---|---|---|---|---|
| 1 | 83.33坪 | 事務所 | 募集終了登録日: 2025年03月25日 | |||
| 2 | 324.48坪 | 事務所 | 募集終了登録日: 2025年03月25日 | |||
| 3 | 324.48坪 | 事務所 | 募集終了登録日: 2025年03月25日 | |||
| 4 | 324.48坪 | 事務所 | 募集終了登録日: 2025年03月25日 | |||
※「ご相談」と記載されている項目について
賃貸人が募集賃料条件を守秘義務の関係から明示していない場合に、【ご相談】と記載しております。
フリーレント(賃料免除)期間、使用面積、入居時期、テナント様の与信などによりご提示できる条件が若干変化いたします。
お手数ですが、詳細につきましては、上記よりお問い合わせください。