takeofficeなら掲載物件の仲介手数料は無料です

第2星光ビル

住所 東京都千代田区九段北4-2-11
交通 JR総武本線市ヶ谷」 徒歩1分
東京メトロ有楽町線麹町」 徒歩9分
東京メトロ半蔵門線半蔵門」 徒歩11分
竣工 1977年10月 構造 SRC+鉄骨造
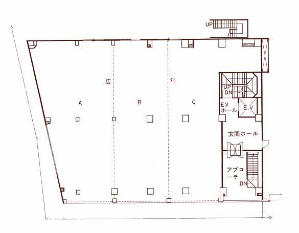
規模 地上10階, 地下1階 耐震基準 旧耐震基準
床構造 フリーアクセス 空調設備 個別空調
天井高 - 基準階面積 --
コンセント容量 - 施工会社

最新の募集状況や類似物件については、
こちらにお問い合わせください。

第2星光ビル 外観

外観

内見やお見積りなどの各種お問い合わせ

全物件
仲介手数料無料
仲介から
入居工事まで
ワンストップで対応
経験豊富なスタッフが
スピード感をもって
対応

周辺での似た条件の物件

非公開物件 多数あり!

お問い合わせフォーム