takeofficeなら掲載物件の仲介手数料は無料です

渡辺ビル

住所 東京都千代田区三番町6-1
交通 東京メトロ半蔵門線半蔵門」 徒歩7分
東京メトロ東西線九段下」 徒歩10分
竣工 1983年06月 構造 SRC
規模 地上8階, 地下1階 耐震基準 新耐震基準
床構造 フリーアクセス 50mm 空調設備 個別空調
天井高 2500mm 基準階面積 280.16坪(926.15m2)
コンセント容量 70VA/m2 施工会社
坪面積 用途 賃料 坪単価 共益費 入居可能日
B1〜8 2903.37坪 事務所 相談 相談 相談 2028年3月
渡辺ビル 外観

外観

  • 渡辺ビル エントランス写真

    エントランス

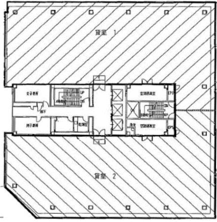
  • 基準階

    基準階

内見やお見積りなどの各種お問い合わせ

全物件
仲介手数料無料
仲介から
入居工事まで
ワンストップで対応
経験豊富なスタッフが
スピード感をもって
対応

※「ご相談」と記載されている項目について
賃貸人が募集賃料条件を守秘義務の関係から明示していない場合に、【ご相談】と記載しております。
フリーレント(賃料免除)期間、使用面積、入居時期、テナント様の与信などによりご提示できる条件が若干変化いたします。
お手数ですが、詳細につきましては、上記よりお問い合わせください。

非公開物件 多数あり!

お問い合わせフォーム