takeofficeなら掲載物件の仲介手数料は無料です

第25興和ビル

住所 東京都千代田区三番町8-7
交通 東京メトロ半蔵門線半蔵門」 徒歩8分
JR総武本線市ヶ谷」 徒歩12分
東京メトロ東西線九段下」 徒歩15分
竣工 1974年02月 構造 SRC
規模 地上7階, 地下2階 耐震基準 旧耐震基準
床構造 フリーアクセス 50mm 空調設備 個別空調
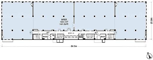
天井高 2500mm 基準階面積 491坪(1624m2)
コンセント容量 - 施工会社

最新の募集状況や類似物件については、
こちらにお問い合わせください。

第25興和ビル 外観

外観

  • 第25興和ビル エントランス写真

    エントランス

内見やお見積りなどの各種お問い合わせ

全物件
仲介手数料無料
仲介から
入居工事まで
ワンストップで対応
経験豊富なスタッフが
スピード感をもって
対応

周辺での似た条件の物件

非公開物件 多数あり!

お問い合わせフォーム