takeofficeなら掲載物件の仲介手数料は無料です

秀和三番町ビル

住所 東京都千代田区三番町28
交通 東京メトロ半蔵門線半蔵門」 徒歩7分
東京メトロ東西線九段下」 徒歩7分
JR総武本線市ヶ谷」 徒歩9分
竣工 1975年01月 構造 SRC+RC
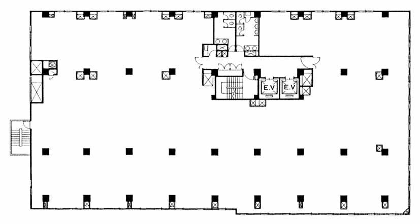
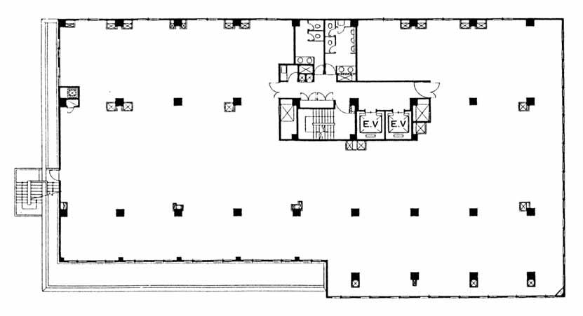
規模 地上9階, 地下1階 耐震基準 耐震診断書有
床構造 フリーアクセス 80mm 空調設備 個別空調
天井高 2400mm 基準階面積 309.71坪(1023.83m2)
コンセント容量 40VA/m2 施工会社

最新の募集状況や類似物件については、
こちらにお問い合わせください。

秀和三番町ビル 外観

外観

  • NOW PRINTING

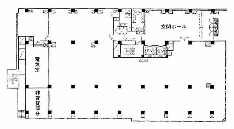
    エントランス

  • 2F

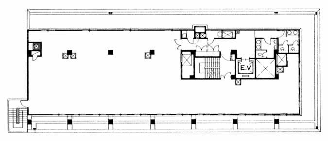
    2F

  • 1F

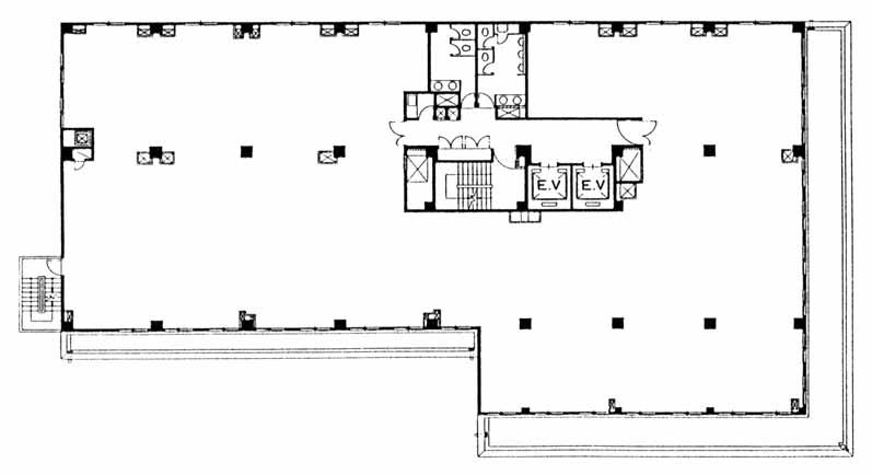
    1F

  • 3F

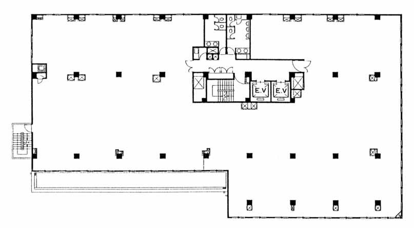
    3F

  • 4F

    4F

  • 5F

    5F

  • 6F

    6F

  • 7F

    7F

  • 8F

    8F

  • 9F

    9F

内見やお見積りなどの各種お問い合わせ

全物件
仲介手数料無料
仲介から
入居工事まで
ワンストップで対応
経験豊富なスタッフが
スピード感をもって
対応

周辺での似た条件の物件

非公開物件 多数あり!

お問い合わせフォーム