takeofficeなら掲載物件の仲介手数料は無料です

日本染色會館

住所 東京都千代田区四番町4
交通 JR総武本線市ヶ谷」 徒歩4分
東京メトロ有楽町線市ヶ谷」 徒歩4分
竣工 1963年12月 構造 RC
規模 地上5階, 地下1階 耐震基準 旧耐震基準
床構造 フリーアクセス 空調設備 個別空調
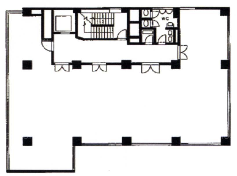
天井高 2600mm 基準階面積 -(201.45m2)
コンセント容量 - 施工会社

最新の募集状況や類似物件については、
こちらにお問い合わせください。

日本染色會館 外観

外観

  • 日本染色會館 エントランス写真

    エントランス

  • 基準階

    基準階

内見やお見積りなどの各種お問い合わせ

全物件
仲介手数料無料
仲介から
入居工事まで
ワンストップで対応
経験豊富なスタッフが
スピード感をもって
対応

周辺での似た条件の物件

非公開物件 多数あり!

お問い合わせフォーム