takeofficeなら掲載物件の仲介手数料は無料です

紀尾井町パークビル

住所 東京都千代田区紀尾井町3-6
交通 東京メトロ有楽町線麹町」 徒歩5分
東京メトロ半蔵門線永田町」 徒歩7分
東京メトロ銀座線赤坂見附」 徒歩8分
竣工 1977年11月 構造 SRC
規模 地上10階, 地下1階 耐震基準 新耐震基準
床構造 フリーアクセス 50mm 空調設備 セントラル+個別
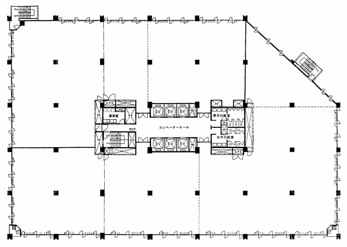
天井高 2550mm 基準階面積 600.31坪(1984.5m2)
コンセント容量 - 施工会社

最新の募集状況や類似物件については、
こちらにお問い合わせください。

紀尾井町パークビル 外観

外観

  • 紀尾井町パークビル エントランス写真

    エントランス

  • 基準階(2~8F)

    基準階(2~8F)

  • 1F

    1F

  • 9F

    9F

内見やお見積りなどの各種お問い合わせ

全物件
仲介手数料無料
仲介から
入居工事まで
ワンストップで対応
経験豊富なスタッフが
スピード感をもって
対応

周辺での似た条件の物件

非公開物件 多数あり!

お問い合わせフォーム