takeofficeなら掲載物件の仲介手数料は無料です

紀尾井町金田ビル

住所 東京都千代田区紀尾井町3-16
交通 東京メトロ有楽町線麹町」 徒歩3分
東京メトロ半蔵門線半蔵門」 徒歩5分
東京メトロ有楽町線永田町」 徒歩8分
竣工 1988年05月 構造 SRC+RC
規模 地上6階 耐震基準 新耐震基準
床構造 - 空調設備 個別空調
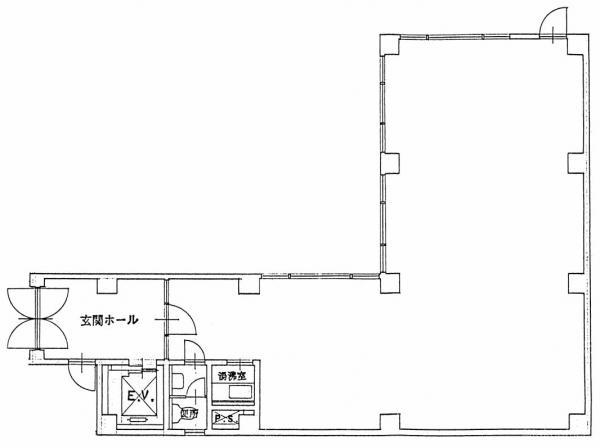
天井高 - 基準階面積 33.28坪(110.02m2)
コンセント容量 - 施工会社

最新の募集状況や類似物件については、
こちらにお問い合わせください。

紀尾井町金田ビル 外観

外観

  • 紀尾井町金田ビル エントランス写真

    エントランス

  • 基準階(2~6F)

    基準階(2~6F)

  • 1F

    1F

内見やお見積りなどの各種お問い合わせ

全物件
仲介手数料無料
仲介から
入居工事まで
ワンストップで対応
経験豊富なスタッフが
スピード感をもって
対応

周辺での似た条件の物件

非公開物件 多数あり!

お問い合わせフォーム