takeofficeなら掲載物件の仲介手数料は無料です

紀尾井ロイヤルハイツ

住所 東京都千代田区紀尾井町3-29
交通 東京メトロ有楽町線麹町」 徒歩4分
東京メトロ半蔵門線永田町」 徒歩4分
東京メトロ銀座線赤坂見附」 徒歩8分
竣工 1973年11月 構造 RC
規模 地上7階, 地下1階 耐震基準 旧耐震基準
床構造 - 空調設備 個別空調
天井高 - 基準階面積 --
コンセント容量 - 施工会社

最新の募集状況や類似物件については、
こちらにお問い合わせください。

紀尾井ロイヤルハイツ 外観

外観

  • 紀尾井ロイヤルハイツ エントランス写真

    エントランス

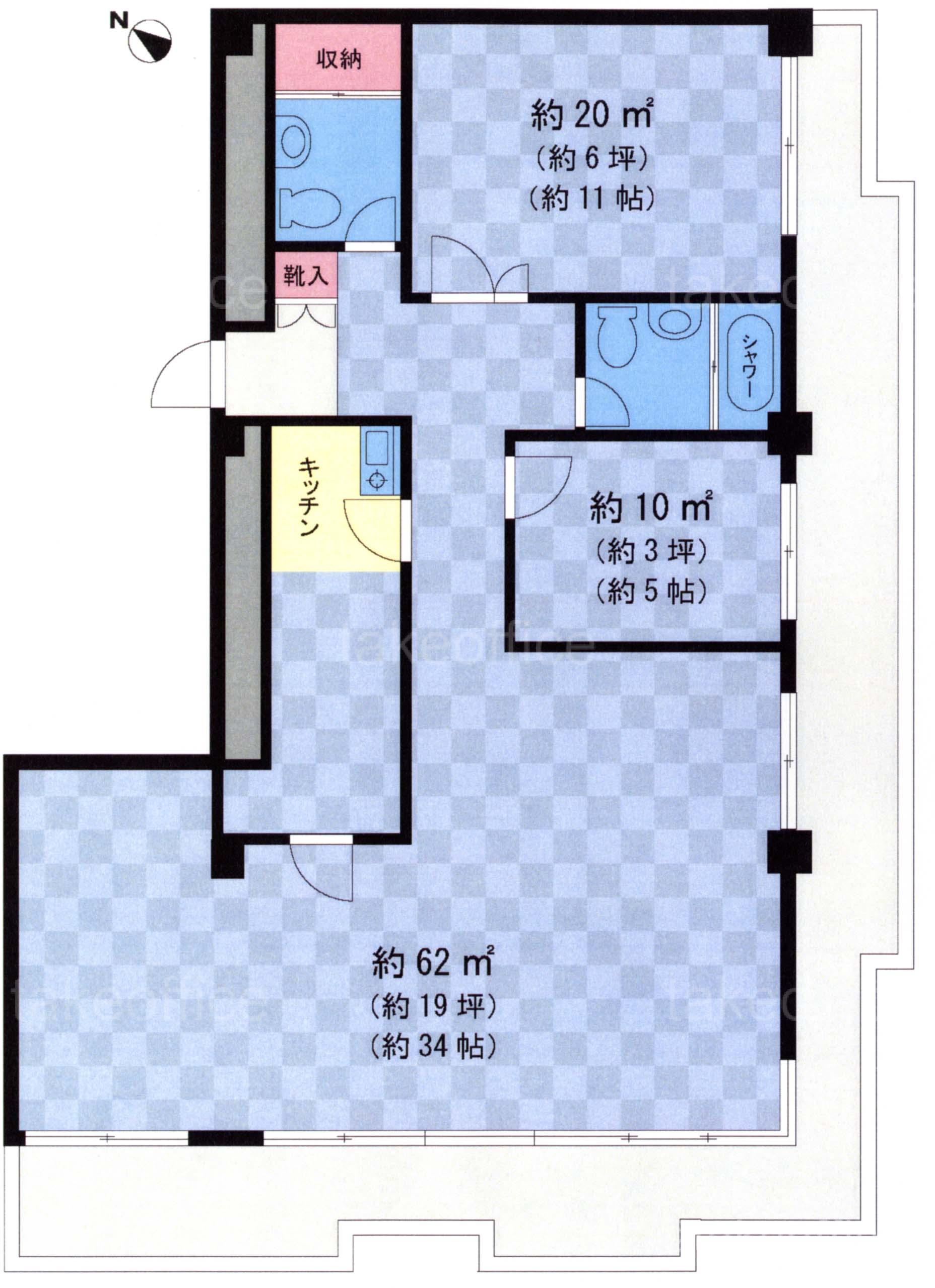
  • 5F(502号室)

    5F(502号室)

内見やお見積りなどの各種お問い合わせ

全物件
仲介手数料無料
仲介から
入居工事まで
ワンストップで対応
経験豊富なスタッフが
スピード感をもって
対応

周辺での似た条件の物件

非公開物件 多数あり!

お問い合わせフォーム