takeofficeなら掲載物件の仲介手数料は無料です

麹町センタービル

住所 東京都千代田区麹町3-5-8
交通 東京メトロ有楽町線麹町」 徒歩3分
東京メトロ半蔵門線半蔵門」 徒歩5分
東京メトロ南北線永田町」 徒歩7分
竣工 1980年12月 構造 SRC
規模 地上9階, 地下1階 耐震基準 旧耐震基準
床構造 - 空調設備 個別空調
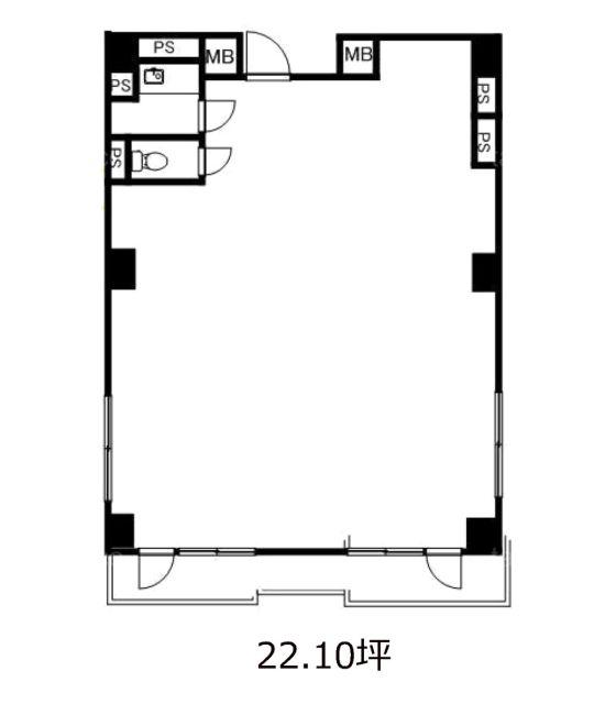
天井高 - 基準階面積 --
コンセント容量 - 施工会社

最新の募集状況や類似物件については、
こちらにお問い合わせください。

麹町センタービル 外観

外観

  • 麹町センタービル エントランス写真

    エントランス

内見やお見積りなどの各種お問い合わせ

全物件
仲介手数料無料
仲介から
入居工事まで
ワンストップで対応
経験豊富なスタッフが
スピード感をもって
対応

周辺での似た条件の物件

非公開物件 多数あり!

お問い合わせフォーム