| 住所 | 東京都千代田区平河町1-3-13 | ||
|---|---|---|---|
| 交通 |
東京メトロ半蔵門線 「半蔵門」 徒歩2分 東京メトロ有楽町線 「麹町」 徒歩3分 |
||
| 竣工 | 1988年03月 | 構造 | SRC |
|---|---|---|---|
| 規模 | 地上8階, 地下1階 | 耐震基準 | 新耐震基準 |
| 床構造 | フリーアクセス 50mm | 空調設備 | 個別空調 |
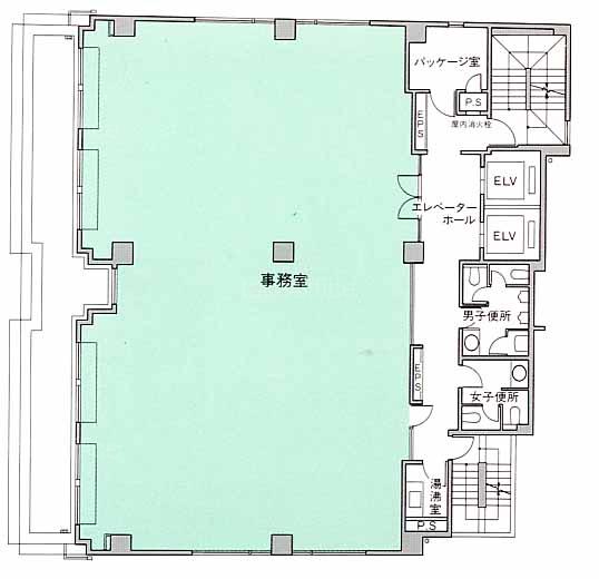
| 天井高 | 2550mm | 基準階面積 | 104.88坪(346.71m2) |
| コンセント容量 | 60VA/m2 | 施工会社 | 清水建設・辰村組共同企業体 |
| 階 | 坪面積 | 用途 | 賃料 | 坪単価 | 共益費 | 入居可能日 |
|---|---|---|---|---|---|---|
| 4 | 57.58坪 | 事務所 | ¥1,410,710(税込 ¥1,551,781) | ¥24,500(税込 ¥26,950) | ¥201,530(税込 ¥221,683) | 即 |
| 4 | 49.57坪 | 事務所 | ¥1,214,465(税込 ¥1,335,911) | ¥24,500(税込 ¥26,950) | ¥173,495(税込 ¥190,844) | 2026年5月初旬 |
建物パンフレットは作成時点のものであり、また計画段階のものも含まれる為、実際とは異なる場合がございます。
※「ご相談」と記載されている項目について
賃貸人が募集賃料条件を守秘義務の関係から明示していない場合に、【ご相談】と記載しております。
フリーレント(賃料免除)期間、使用面積、入居時期、テナント様の与信などによりご提示できる条件が若干変化いたします。
お手数ですが、詳細につきましては、上記よりお問い合わせください。